Sertanópolis Investe em Ampliação e Reforma da UBS Maria Casagrande Favoreto
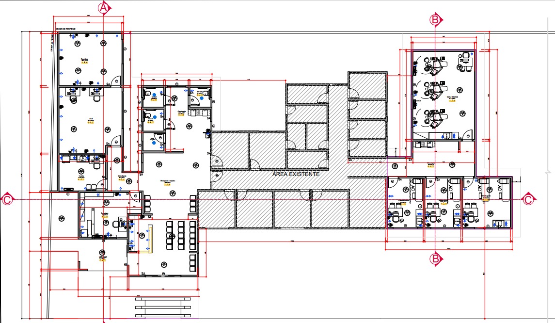
A Prefeitura Municipal de Sertanópolis, por meio do Departamento de Engenharia, irá realizar uma licitação para a reforma e ampliação da Unidade Básica de Saúde (UBS) Maria Casagrande Favoreto. A sessão de abertura da licitação está marcada para o dia 2 de abril.
O projeto, que será realizado com recursos próprios da Prefeitura, está orçado em R$ 696 mil. A ampliação da UBS incluirá a construção de uma sala de odontologia, três novos consultórios, uma farmácia, uma sala de vacinação, além da ampliação dos banheiros e da recepção.
Essa iniciativa visa melhorar a infraestrutura e a qualidade do atendimento à população, reforçando o compromisso da administração municipal com a saúde pública. A comunidade aguarda com expectativa o início das obras.





